⭐ Предимства: ✓ 18 мм фолиран МДФ ✓ 16 мм МДФ ✓ функционална и просторна ✓ шкаф за фурна и микровълнова ✓ шкаф за хладилник ✓ множество шкафове ✓ чекмеджета с плавно прибиране ✓ механизъм за плавно затваряне ✓ термоплот ✓ качествена изработка
Съвременната кухня трябва да бъде не просто красиво помещение, а ефективна и приятна зона за готвене и събирания с близките. Кухня Гана напълно отговаря на тези изисквания - тя е стилна, модерна и отлично организирана.
Горния ред шкафове са удобни и функционални - побират малко изполваните уреди и съдове. Основния ред горни шкафове са просторни за най-често използваните уреди и посуда. Шкаф стандартен размер за вграждане на хладилник - за да бъде всичко в синхрон. Шкаф за вграждане на фурна и микровълнова. Долния ред шкафове е функционално подбран - перфектната комбинация на рафтове и чекмеджета, за да поберат често използваните уреди, подправки и посуда.
Страхотната модерна комбинация между корпус бяло гладко и лице карбон мат с бял гланц, придава на кухнята характер и уют.
Кухнята е изработена от 16 мм ПДЧ корпус и 18 мм фолиран МДФ. Предимството на фолирания МДФ е, че материалът покрива цялата повърхност, включително и кантовете на детайла, т.е. материалът е облечен изцяло. Термоплотът идва при теб цял, за да можеш да го пригодиш спрямо твоите предпочитания и е в цвят Небула. Всички врати и чекмеджета са с механизъм за плавно затваряне.
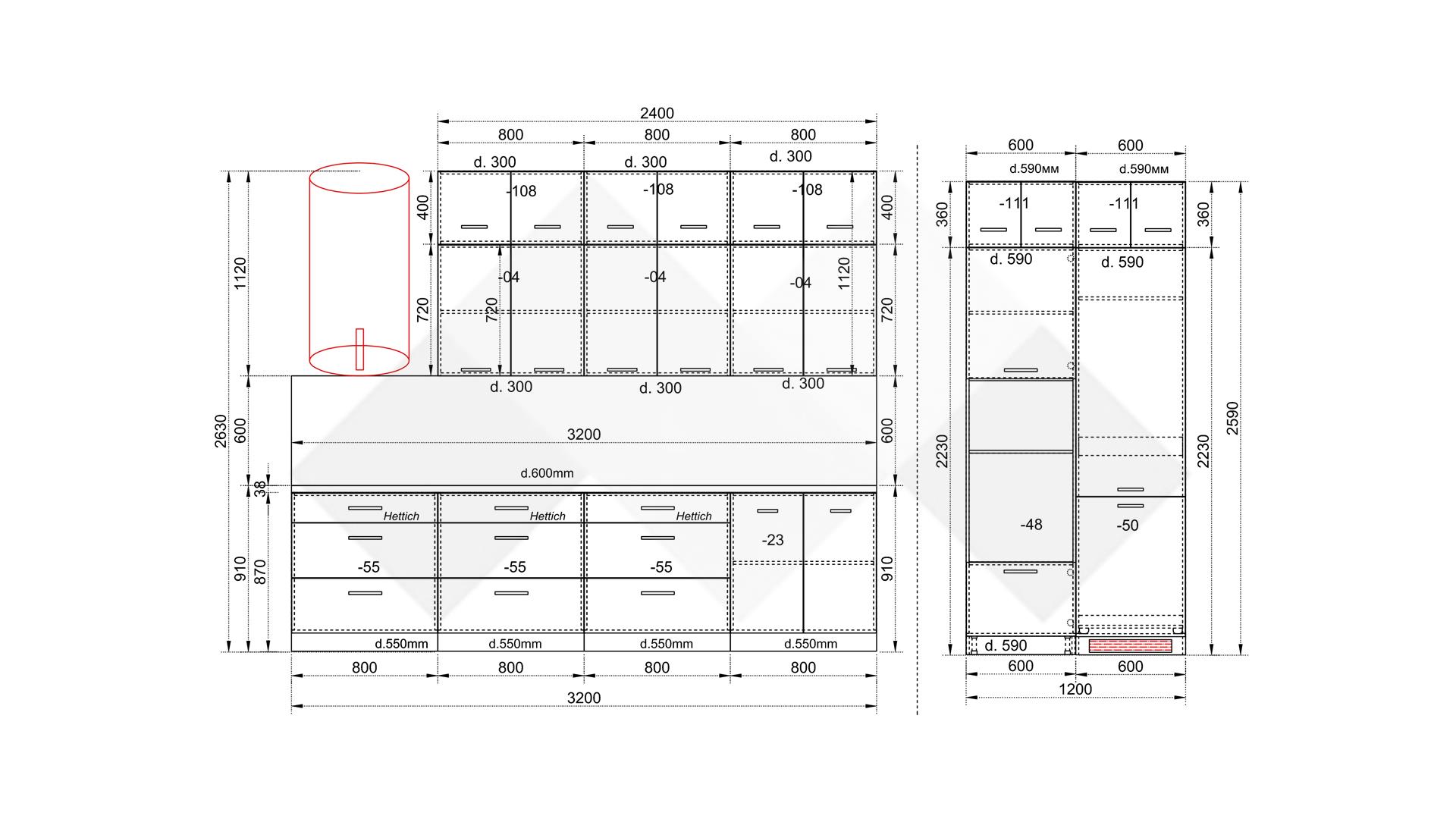
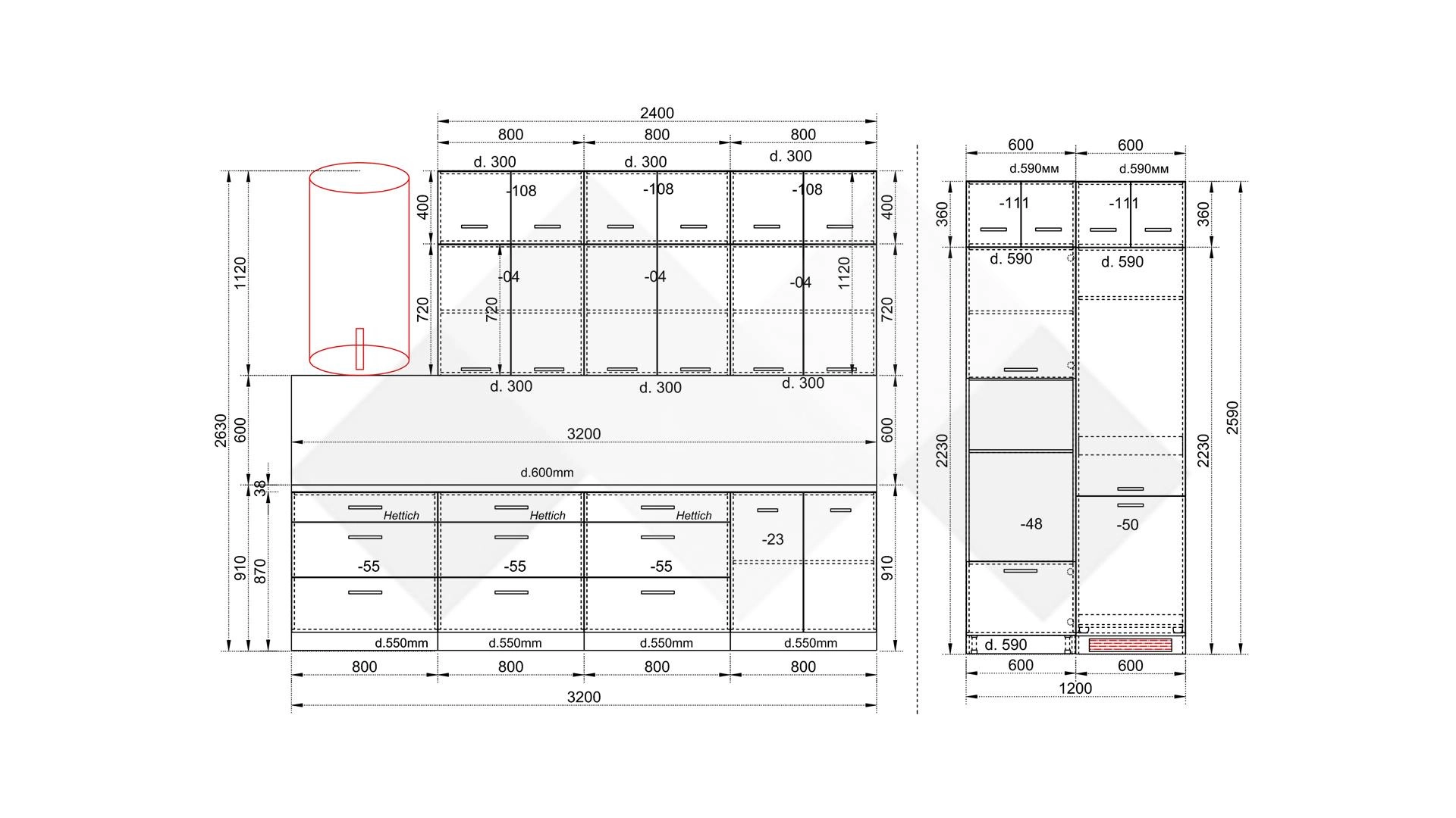
📐 Размери:
Долен ред: Д: 320 см. Ш: 60 см. В: 91 см.
Горен ред: Д: 240 см. Ш: 30 см. В: 112 см.
Термоплот: Д: 320 см. Ш: 60 см. В: 3,8 см.
Шкаф за фурна: Д: 60 см. Ш: 59 см. В: 259 см.
Шкаф за хладилник: Д: 60 см. Ш: 59 см. В: 259 см.
Бъди първи и напиши мнение ;)
Избери звезда, за да оцениш продукта.
Твоята оценка